
4707 XE, Roosendaal
Laat uw gegevens achter dan nemen wij zo spoedig mogelijk contact met u op.
Zundertseweg 18 is niet zomaar een huis. Het is een statement – een plek waar innovatie, comfort en natuur in perfecte harmonie samenkomen. Deze vrijstaande woning (bouwjaar 2012) werd met visie en vakmanschap gebouwd: circulair van opzet, met een betonnen fundering, een massief houten draagconstructie en volledig voorzien van triple glas, 28 zonnepanelen, een grondwarmtepomp, zonnecollectoren, grijswatersysteem én een sedumdak met sproeisysteem. Hier is niet alleen gedacht aan stijl, maar vooral aan toekomst. Te midden van het groen vormt de woning voorzien van woonkamer met veel lichtinval die doorloopt in woonkeuken, 3 slaapkamers, studeerkamer, 2 badkamers en een praktische bijkeuken, een oase van rust en ruimte. De tuin is een droom voor liefhebbers van buitenleven: volledig besloten, op het zuidwesten, met een groot zonneterras en een zwemvijver van 10 bij 7 meter die op natuurlijke wijze wordt gefilterd en gevoed door hemelwater. Een plek waar duurzaamheid voelbaar wordt – in het licht, de lucht, het water en de stilte. Een woning die niet alleen prachtig oogt, maar ook doordacht functioneert. Hier woon je in rust, met ruimte, comfort en een blik op de toekomst.
Kom alle mogelijkheden eens bekijken en maak een vrijblijvende afspraak voor een bezichtiging.
Beschrijving:
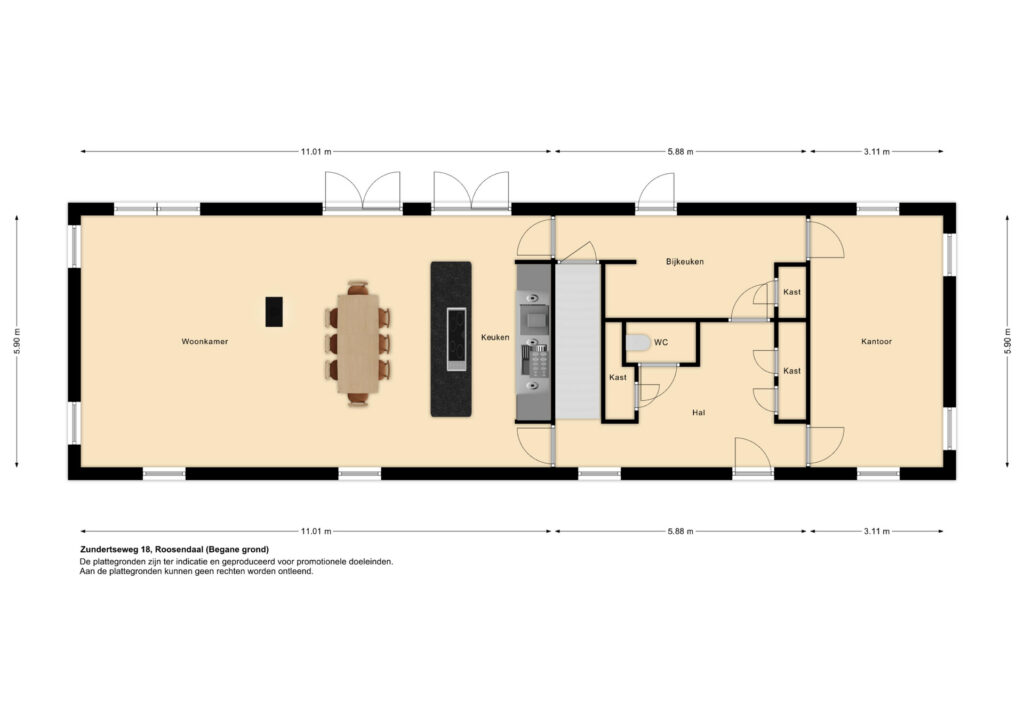
Bij binnenkomst ervaar je meteen de kracht van eenvoud. De centrale entree met de strak gevlinderde betonvloer straalt een ingetogen luxe uit. Vanuit hier bereik je het toilet, de studeerkamer en de bijkeuken.
De studeerkamer/kantoor (ca. 18m²) is een heerlijke werkplek met veel daglicht en een rustige sfeer. De bijkeuken (ca. 15m²) is praktisch ingericht met spoelmeubel, aansluitingen voor was/droogapparatuur en een tuindeur.
De woonkamer met open keuken (ca. 65m²) vormt het hart van de woning – een indrukwekkende leefruimte van ruim tien meter lang met vide, drie openslaande tuindeuren en een sfeervolle houtkachel. De keuken in eilandopstelling is een lust voor het oog én de kok: voorzien van een inductiekookplaat met geïntegreerd afzuigsysteem (externe motor), RVS-werkblad, Quooker, spoelgedeelte en koelkast. Elk detail ademt kwaliteit en rust.
Licht, ruimte en rust
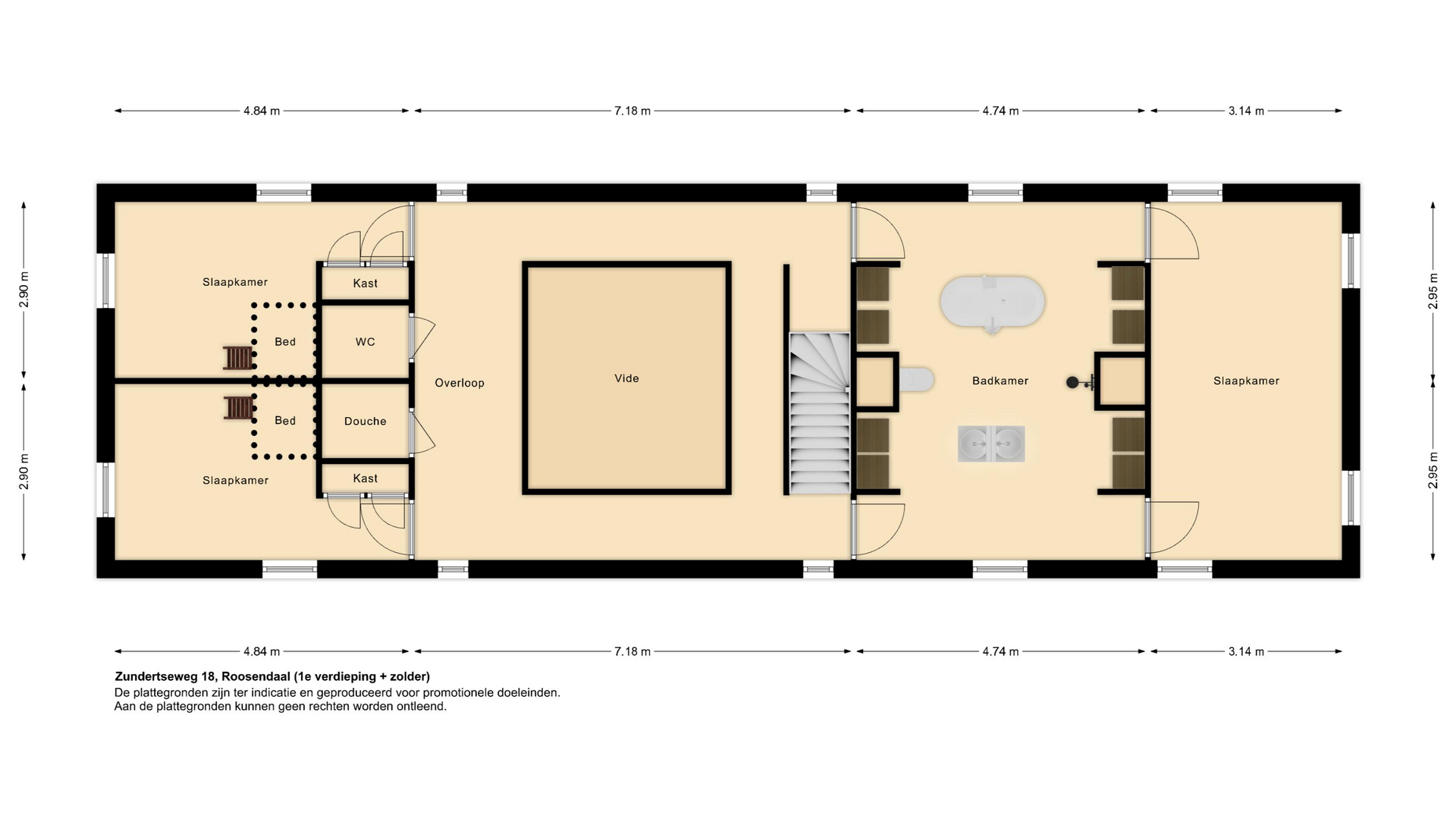
De vide met elektrisch bedienbare dakramen zorgt voor een ruimtelijke beleving en prachtige lichtinval. Op de verdieping vind je drie comfortabele slaapkamers, een separaat toilet en een douche. De hoofdslaapkamer (ca. 18 m²) met royale en-suite badkamer (ca. 27m²) en doorloopkast, deze ruimte is riant en licht, met tapijt, elektrisch bedienbare dakramen en een plafondhoogte van maar liefst 5,80 meter. De badkamer biedt hotelwaardige luxe: een vrijstaand ligbad, inloopdouche, dubbele wastafel en een toilet.
De twee andere slaapkamers (ca. 14m²) zijn voorzien van verhoogde slaapplateaus, wastafel, muurverwarming en elektrisch bediende verduistering – perfect voor logees, kinderen of gasten.
Via de vaste trap bereik je de zolder, waar de technische installaties zijn ondergebracht: onder meer de zonnecollector en de unit voor de mechanische ventilatie.
Vooruitstrevend wooncomfort
Deze woning is een toonbeeld van energie-efficiënt wonen en voorzien van Energielabel A+++. De grondwarmtepomp met warmte- en koudeopslag tot 80 meter diep zorgt in elk seizoen voor een comfortabel binnenklimaat. Op de begane grond is vloerverwarming aanwezig, op de verdieping wandverwarming, en in de badkamers zowel vloer- als wandverwarming.
Het EPDM-dak met sedum biedt natuurlijke isolatie en verkoeling, terwijl het geïntegreerde sproeisysteem wordt gevoed door opgevangen regenwater. De 28 zonnepanelen en zonnecollectoren voorzien ruimschoots in de energiebehoefte en warmwatervoorziening.
Zelfs het waterverbruik is slim geregeld: via het grijswatersysteem wordt water uit de zwemvijver gebruikt voor toiletspoeling en bewatering. Alles in dit huis is ontworpen met respect voor mens en milieu – zonder concessies aan comfort of esthetiek.
Buitenleven in balans
De tuin is een waar verlengstuk van de woning. De natuurlijke erfafscheiding biedt volledige privacy, terwijl het zuidwestelijke terras uitnodigt om te genieten van lange zomeravonden. De elektrisch bedienbare zonneschermen over de volle breedte zorgen voor aangename schaduw.
De zwemvijver vormt het hart van deze groene tuin: een unieke combinatie van design en ecologie, met een natuurlijk filtersysteem dat het water helder en puur houdt. Daarnaast is er een ruime berging (12,07×2,42 m) met elektra en dubbele deuren, achterom en een oprit voor meerdere auto’s met twee laadpalen.
Extra specificaties
• De constructie is van puur hout, zonder lijm of andere toegevoegde stoffen, goed voor de gezondheid en het milieu
• Dankzij de klimaat regulerende en geluidsdempende eigenschappen, heb je bijvoorbeeld geen last van de nadelen die een vide doorgaans met zich meebrengt: de warmte stijgt niet op en het geluidsniveau blijft aangenaam. Het zorgt voor een hoog wooncomfort.
• Het massief hout heeft uitstekende eigenschappen op het gebied van brandwerendheid en vochtregulatie. Het kent een zeer lange levensduur.
Samenvatting:
• Vrijstaande, circulair gebouwde woning (bouwjaar 2012)
• Energielabel A+++
• Woonoppervlak ca. 214 m² | Inhoud ca. 910 m³
• 28 zonnepanelen, grondwarmtepomp, zonnecollectoren, grijswatersysteem
• Volledig voorzien van triple glas
• EPDM-dak met sedum en sproeisysteem
• Zwemvijver met natuurlijk filtersysteem
• Oprit met ruimte voor meerdere auto’s en twee laadpalen
• Aanvaarding: in overleg
Geen kaartgegevens beschikbaar voor dit object