
4703 TA, Roosendaal
Laat uw gegevens achter dan nemen wij zo spoedig mogelijk contact met u op.
Vrijstaande woning op royaal perceel van 1.455 m² rustig gelegen in het buitengebied, maar met het centrum van Roosendaal op korte afstand. Ben je op zoek naar een plek waar je vrij kunt wonen, omringd door groen en met alle ruimte om te genieten van het buitenleven? Deze vrijstaande woning met Energielabel A++ staat op een riant perceel van maar liefst 1.455 m², midden in het landelijke buitengebied van Roosendaal. Hier geniet je van vrijheid, privacy en talloze mogelijkheden: een grote tuin om te ontspannen, een plek om te klussen of te hobbyen, ruimte voor dieren, of gewoon om het buitengevoel elke dag te ervaren.
De woning met gezellige woonkamer, serre, open keuken, drie slaapkamers en complete badkamer is door de jaren heen grondig verbouwd en energiezuinig gemaakt; vernieuwd dak (pannen en isolatie), nieuwe vloeren, volledig vernieuwde elektra, vernieuwde voegwerken, trap en HR++ beglazing, 28 zonnepanelen en 3 airco’s waardoor het een fijne combinatie biedt van karakter, comfort en energiezuinigheid. Hier woon je in rust, met ruimte, comfort en een blik op de toekomst. Kom alle mogelijkheden eens bekijken en maak een vrijblijvende afspraak voor een bezichtiging.
Beschrijving:
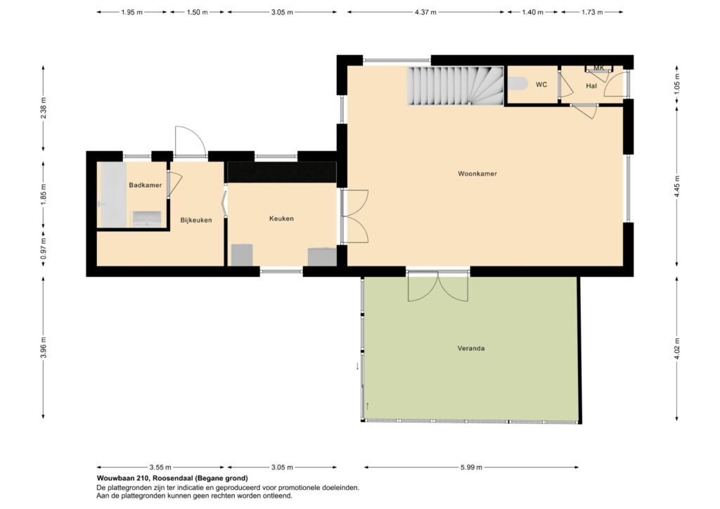
Via de entree kom je in de hal met meterkast (9 groepen, 3x krachtstroom, 6 aardlekschakelaars) en een keurig afgewerkt toilet met hangcloset en fonteintje.
De lichte woonkamer heeft een warme en huiselijke sfeer, met een keramische tegelvloer voorzien van vloerverwarming, open trap, openslaande deuren naar zowel de serre als de keuken en een airco voor aangenaam binnenklimaat.
De serre (ca. 6,00 x 4,00 m) is een heerlijke plek om te zitten, met schuifbare glaspanelen aan twee zijden zodat je ook op koelere dagen van de tuin kunt genieten.
Praktische keuken met moderne voorzieningen
De keuken is praktisch ingericht en voorzien van een moderne, tweedelige opstelling met kunststof werkblad, oven/grill, combimagnetron, vaatwasser, inductiekookplaat en design afzuigkap.
Vanuit de keuken is er toegang tot de portiek met staldeur en tuindeur, bergkast met HR combiketel (Remeha Calenta, 2019) en de badkamer, die volledig betegeld is en beschikt over een ligbad/douche en wastafel (ca. 1,91 x 1,88 m).
Met op de verdieping drie slaapkamers;
• Slaapkamer 1 (voorzijde): ca. 4,36 x 3,12 m, met airco, laminaatvloer en stucafwerking.
• Slaapkamer 2: ca. 4,15 x 2,79 m, met dakraam, laminaatvloer en glasvliesbehang.
• Slaapkamer 3: ca. 1,96 x 2,29 m, met laminaat en strak stucwerk.
Een tuin om van te genieten
De tuin is rondom de woning aangelegd en biedt volop privacy. Dankzij de verschillende terrassen, het gazon en de beplante delen is het een heerlijke plek voor ontspanning of gezelligheid. Er is een tuinbar, een jacuzzi en een sfeervolle tuinkamer/buitenverblijf (ca. 4,28 x 9,28 m), die is geïsoleerd en voorzien van airco en een gezellige bar, perfect voor hobby, ontspanning of werk aan huis.
Berging;
Schuur/garage (3,41 x 5,47 m) met bergvliering.
Garage (5,24 x 5,00 m) met stalen kanteldeur en bergzolder.
Samenvatting:
• Vrijstaande woning op royaal perceel van 1.455 m²
• Geheel verbouwd en goed onderhouden
• Zonnepanelen, airco’s en hybride warmtepomp
• Ruime tuin met meerdere terrassen, jacuzzi en tuinkamer
• Twee garages/schuren met bergzolder
• Rustig gelegen in het buitengebied, maar met het centrum van Roosendaal op korte afstand
Daarnaast is de woning energiezuinig en toekomstbestendig dankzij:
• 28 zonnepanelen (2021, totaal 10.080 kWh/jaar)
• 3 airco’s (2021) – woonkamer, slaapkamer en tuinhuis
• Hybride warmtepomp (Remeha, 2024)
Geen kaartgegevens beschikbaar voor dit object