
4703 EP, Roosendaal
Laat uw gegevens achter dan nemen wij zo spoedig mogelijk contact met u op.
Ben je op zoek naar een ruim 4-kamer appartement met een fijn balkon op het zuiden? Dan is dit appartement, gelegen op de 2e verdieping met praktische indeling en volop mogelijkheden om het geheel naar eigen smaak te moderniseren, precies wat je zoekt!
Bovendien is dit appartementencomplex voorzien van liftinstallatie en ligt op loopafstand van alle voorzieningen en het stadcentrum. Hier kun je echt iets moois van maken! Kom snel kijken en maak een afspraak voor een bezichtiging!
Beschrijving:
Begane grond:
Gesloten centrale hal met brievenbussen en intercom met bellentableau, toegang tot de liftinstallatie, het trappenhuis en de bergingen.
2e Verdieping:
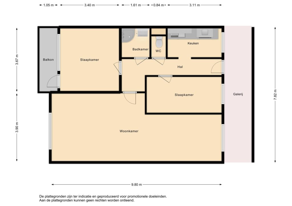
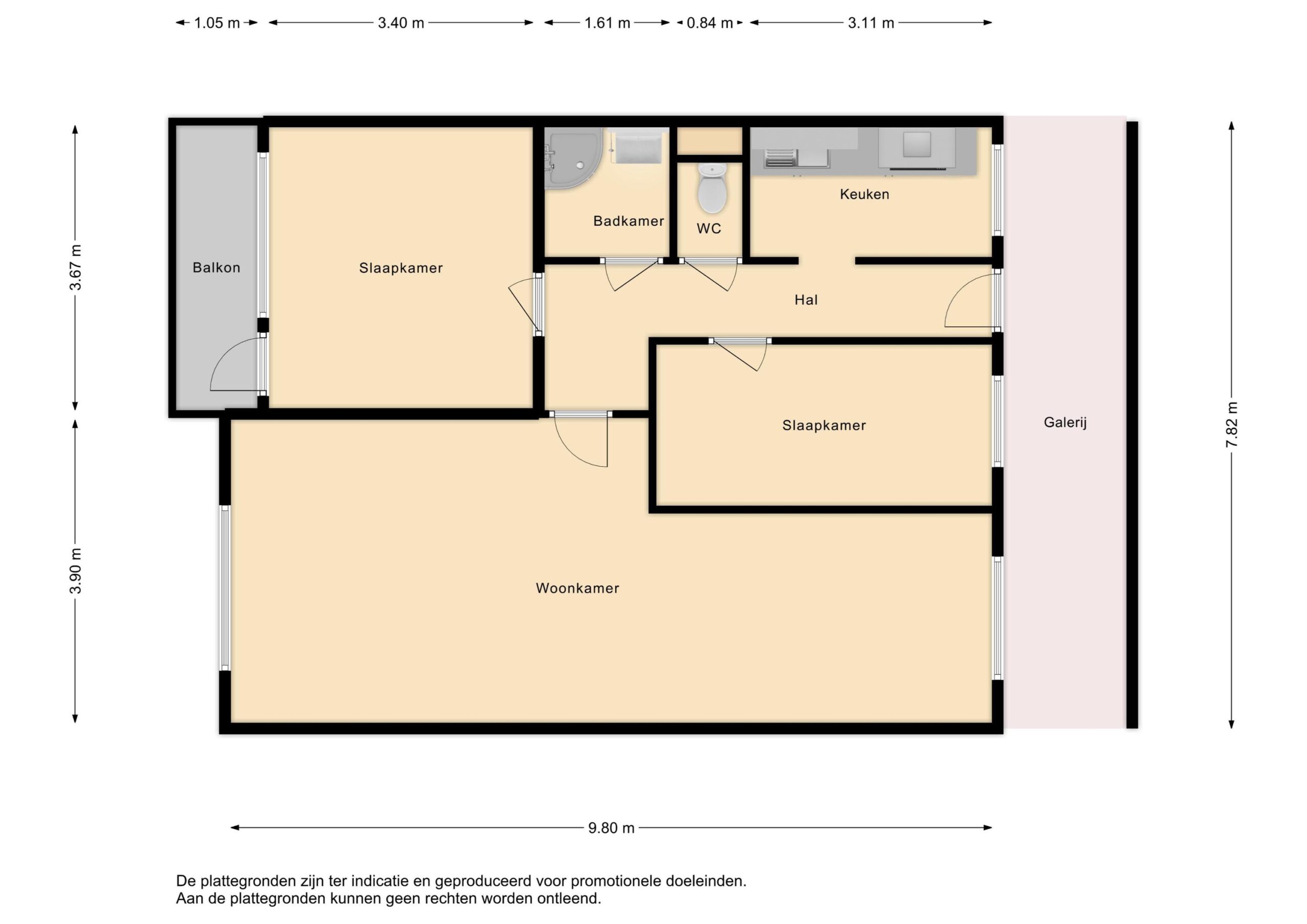
Via de nette galerij bereik je de entree/hal van het appartement. Deze hal geeft toegang tot alle vertrekken en is voorzien van intercom en meterkast (4 groepen). De gesloten keuken is deels betegeld en voorzien van eenvoudige keukeninrichting met granieten werkblad, geiser en afzuigkap. De lichte woonkamer (ca. 21m²) biedt een vrij uitzicht aan de voorzijde en geeft toegang tot een slaapkamer (ca. 11 m²). Het is mogelijk om deze ruimte bij de woonkamer te betrekken en vormt dan een royale living. Hiermee kun je dus alle kanten op. Verder is er nog een deels betegelde toiletruimte met fonteintje en een eenvoudige badkamer met douchecabine en wastafel. Aan de voorzijde vind je de 2e slaapkamer (ca. 12m²) met vaste kasten en toegang tot het balkon op het zuiden (.3,50 x 1,29m). De 3e slaapkamer (ca. 11m²) bevindt zich aan de galerijzijde, ideaal als werk- of logeerkamer.
Berging:
Op de begane grond bevindt zich een handige ruime berging (3,51 x 2,65m) met mogelijkheid voor het aansluiten van elektra en verlichting, handig voor het opbergen van fietsen of hobbyspullen.
Servicekosten:
De maandelijkse servicekosten bedragen ca. € 227,– inclusief stookkosten.
Aanvullende gegevens:
Bouwjaar : 1964
Inhoud : ca. 220m³
Woonoppervlak : ca. 74m²
Verwarming : Blokverwarming.
Isolatie : Deels v.v. kunststof kozijnen en dubbele beglazing (voorzijde).
Geen kaartgegevens beschikbaar voor dit object